Preservation Designs Ltd. worked with ARCHITECTURAL ALLIANCE to renovate the old Weisheimer Building at 235 North 4th Street in downtown Columbus, Ohio. The three-story brick structure was built between 1900 and 1920 as a wholesale and retail drugstore. By 1950, the building had been converted to a warehouse, office, and retail store for household appliances. Renovation work on the exterior of the building included replacing the windows, stripping the paint off the first floor of the facade, painting the north side of the building, and restoring windows to the north side of the building. Interior work includes two new stairs, a new elevator, rehabilitation of the wood floors, restoration of the tin ceiling on the first floor, and stripping paint from the brick, columns, and beams of the upper floors.
This image of the Weisheimer Building before renovation shows how the building had been modified over the years. At some point, the facade had been modernized and the original storefront windows modified. The north wall of the building was originally the exterior wall of the neighboring building, which was demolished sometime between 1920 and 1950.
This 1920 Sanborn Map show that the building was a three-story brick structure with wood posts, two freight elevators, and windows on the south, east, and west sides of the building. The building was used as a wholesale and retail drugstore
This 1950 Sanborn Map shows how the building has changed over the years. It is now being used as a warehouse, office, and retail store for household appliances. The windows on the south wall will be enclosed to accommodate the neighboring structure. The building to the north has been demolished and the north wall is now the exterior wall for the Weisheimer Building.
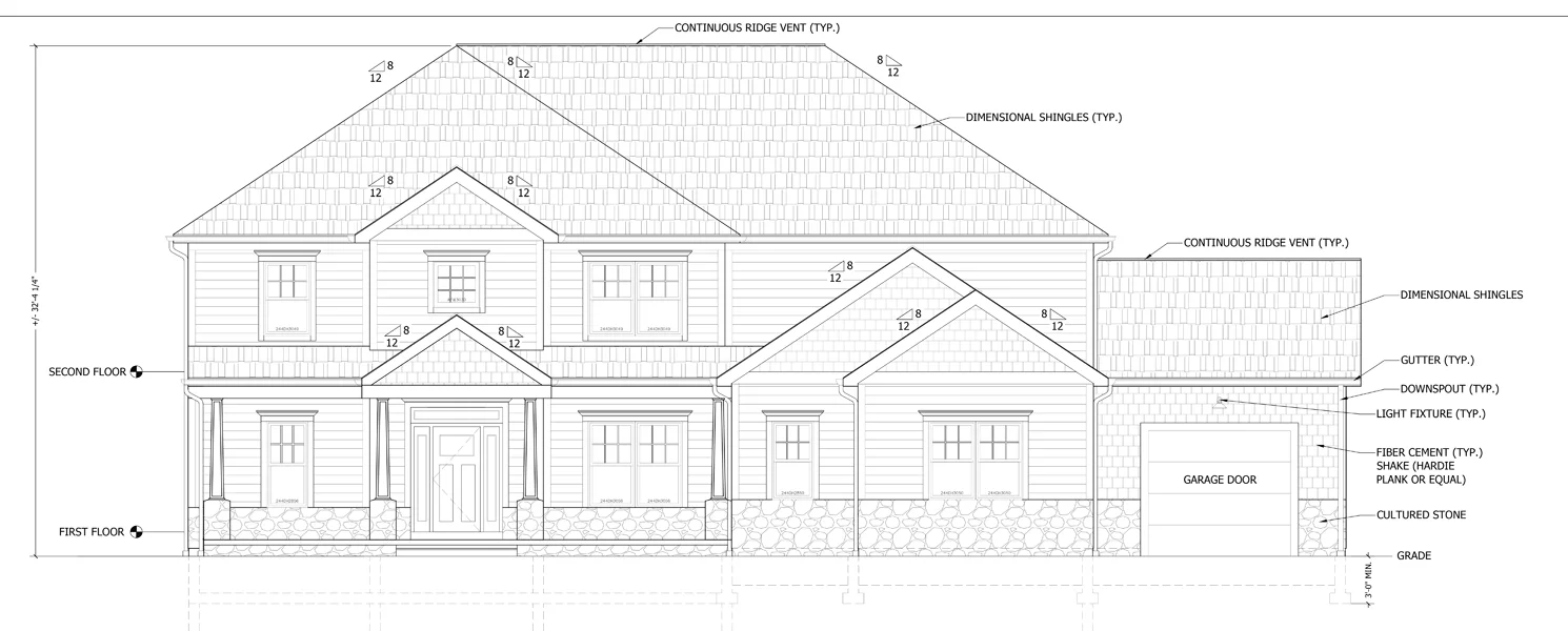
The facade of this custom house shows the influence of the Craftsman style with its front gables, front porch with square posts and stone bases, and six-over-one light sash windows. The siding is actually fiber-cement board used for horizontal siding, board-and batten siding in the gables and around the garages, and shingles in select locations.
Preservation Designs, Ltd. worked with ARCHITECTURAL ALLIANCE on this infill site in the Italian Village neighborhood of Columbus, Ohio, to create a community with apartments, town homes, offices, retail spaces, and a community center.
Preservation Designs, Ltd. worked with ARCHITECTURAL ALLIANCE on the adaptive re-use of this historic building in the Short North neighborhood of Columbus, Ohio, to create a mixed-use development of retail space, restaurants, and apartments. The Fireproof Building was first built in 1909 and served as a records storage building for Columbus businesses.
Preservation Designs, Ltd. worked with ARCHITECTURAL ALLIANCE on this urban infill site in the Short North neighborhood of Columbus, Ohio, to create a mixed-use development with stores, restaurants, brownstones, apartments, and an attached parking garage.